Casa indipendente in vendita

Vibonati, Corso Umberto I
€ 235.000
8 locali 8 locali
290 Mq 290 Mq
2 bagni 2 bagni

Casa indipendente in vendita

Vibonati, Corso Umberto I

Descrizione annuncio

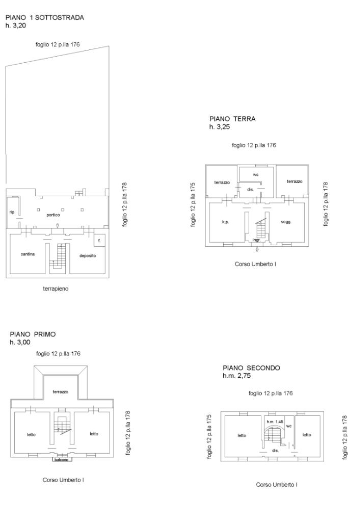
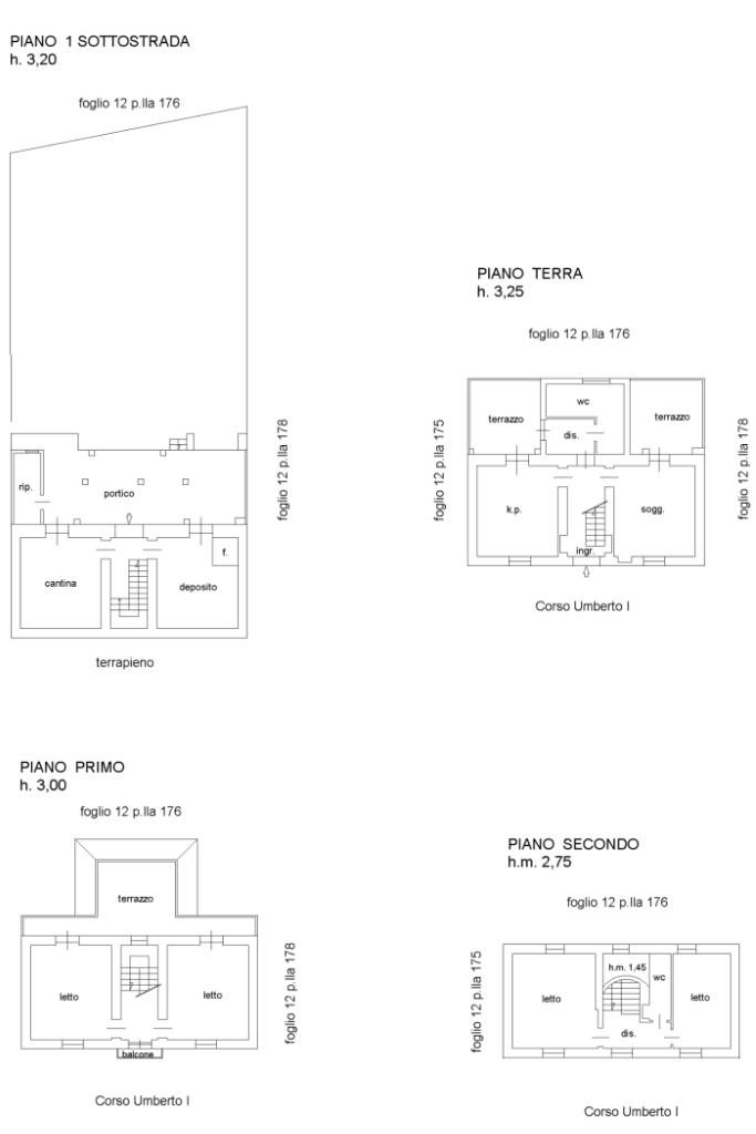
Vibonati, nel centro abitato e vicino a tutti i servizi, disponiamo di una casa indipendente su quattro livelli con ampio giardino privato. Questa proprietà offre comfort e funzionalità in un ambiente tranquillo e riservato. Il giardino è arricchito da alberi da frutto e un pozzo. Il tutto rappresenta un'oasi di relax e convivialità, con un secondo accesso diretto su strada. Al piano terra ampio soggiorno con uscita sul terrazzo, ideale per pranzare all'aperto, una cucina e bagno con vasca. Al primo piano due ampie camere da letto con balconi e terrazzo; al secondo piano altre due camere da letto con finestre ideali anche come studio e bagno. La casa dispone di una cantina con forno a legna dove è presente anche una stanza lavanderia con porticato esterno. Soluzione perfetta per uso residenziale e turistico oppure come investimento per struttura ricettiva.

Mostra tutto

Nelle vicinanze

Trasporto pubblico Trasporto pubblico
Villammare Pescheria San Raimondo
Villammare Pescheria San Raimondo
2,1 Km
Trasporto pubblico
2,7 Km
Scuole Scuole
Scuole
230 m
Farmacia Farmacia
Farmacia
2,4 Km
Supermercati Supermercati
Alimentari Da Carlo
2,3 Km
Mensana
2,8 Km
Bar Bar
Bar
70 m
Bar Gelateria Mascalzone Latino
2,7 Km
Ristoranti Ristoranti
Com'a na' vota
100 m
U Cazill' i Rè
2,7 Km
Taverna portosalvo
2,7 Km
Ristoranti
2,8 Km
Mostra tutto

Caratteristiche

Rif.:
61132126
Piano:
Su più livelli di 3
Totale piani:
3
Posti auto:
2
Balconi:
3
Terrazzi:
3
Mostra tutto
Prezzo Prezzo
€ 235.000
Rata mutuo Rata mutuo
€ 1.079 / mese
Spese annue Spese annue
€ 0
Proponi il tuo prezzoProponi il tuo prezzo

Classe Energetica

G
G
G
G
G
G
G
G
G
EP globale non rinnovabile:
3.51 kW h/m² anno
EP globale rinnovabile:
3.51 kW h/m² anno
EP invernale del fabbricato:
EP estiva del fabbricato:
Anno di costruzione:
1960
Riscaldamento:
Autonomo
Tipo impianto:
A radiatori
Tipo alimentazione:
GPL

Ti interessa visionare l'immobile?

Fissa un appuntamento  Fissa un appuntamento

Richiedi informazioni

* Questi campi sono obbligatori

Calcola il tuo mutuo

Semplice e senza impegno
Anticipo

( % )
Mutuo

( % )

pochi semplici passi

inserisci i tuoi dati
Questionario completato
Grazie per aver richiesto un appuntamento senza impegno con un nostro Consulente del Credito e Assicurativo.

Hai inserito correttamente tutti i dati necessari e a breve riceverai una e-mail con un link da convalidare per inviare i tuoi dati.
Affiliato
Spigolatrice Srl
Corso Garibaldi, 1 84073 Sapri (SA)

Il nostro staff


  • Nadia Bianco
    Coordinatrice

  • Rosa Mannarino
    Collaboratrice

  • Luca Alessandro Nettuno
    Responsabile

  • Sandy Pace
    Collaboratrice

  • Francesco Pisani
    Collaboratore

  • Filomena Raso
    Coordinatrice

  • Antonio Rocco
    Affiliato
Corso Garibaldi, 1 84073 Sapri (SA)
Zona: Sapri -Villammare
Mostra su mappa
Orari: Dal lunedì al sabato, dalle 09.00 alle 13.00 e dalle 15.30 alle 20.00 . La domenica dalle 10.30 alle 12.30
Affiliato
Spigolatrice Srl
Corso Garibaldi, 1 84073 Sapri (SA)

2025 Tecnocasa Franchising S.p.A. - P. IVA 08365160152 - Via Monte Bianco 60/A 20089 Rozzano (MI). Ogni agenzia ha un proprio titolare ed è autonoma. Privacy policy | Policy utilizzo | Cookie policy