Casa di corte in vendita

Vibonati, Contrada Carbone
€ 500.000
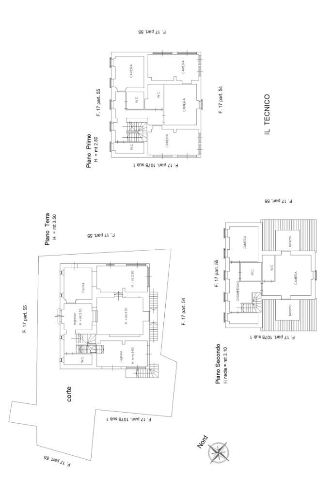
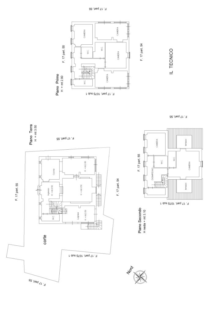
15 locali 15 locali
450 Mq 450 Mq
6 bagni 6 bagni

Casa di corte in vendita

Vibonati, Contrada Carbone

Descrizione annuncio

Vibonati, Immersa in un paesaggio incantevole, questa esclusiva tenuta residenziale si estende su un terreno pianeggiante di 4,5 ettari, offrendo un’oasi di tranquillità e privacy. Il fabbricato, disposto su più livelli, è stato completamente ristrutturato con grande cura dei dettagli, con travi in legno a vista che conferiscono calore e carattere agli ambienti, creando un’atmosfera accogliente e raffinata. Gli ampi terrazzi panoramici permettono di godere di viste mozzafiato sulla natura circostante, perfetti per momenti di relax o incontri conviviali. Gli ambienti interni sono caratterizzati da un’eccezionale luminosità naturale, grazie alle grandi finestre e alla disposizione degli spazi. Questa proprietà rappresenta una soluzione ideale per lo sviluppo di strutture ricettive di charme, offrendo un contesto unico e suggestivo per ospitare ospiti in un’atmosfera di autentica bellezza e comfort.

Mostra tutto

Nelle vicinanze

Trasporto pubblico Trasporto pubblico
Villammare Pescheria San Raimondo
Villammare Pescheria San Raimondo
500 m
Trasporto pubblico
1,2 Km
Scuole Scuole
Scuole
1,4 Km
Farmacia Farmacia
Farmacia
850 m
Supermercati Supermercati
Alimentari Da Carlo
770 m
Mensana
1,3 Km
Despar
2,4 Km
Bar Bar
Bar Gelateria Mascalzone Latino
1,2 Km
Bar
1,6 Km
Ristoranti Ristoranti
U Cazill' i Rè
1,1 Km
Taverna portosalvo
1,2 Km
Ristoranti
1,3 Km
Com'a na' vota
1,6 Km
Mostra tutto

Caratteristiche

Rif.:
61135031
Piano:
3 di 3 (Piano su più livelli)
Posti auto:
8
Balconi:
6
Terrazzi:
4
Camere da letto:
8
Mostra tutto
Prezzo Prezzo
€ 500.000
Rata mutuo Rata mutuo
€ 2.375 / mese
Spese annue Spese annue
€ 0
Proponi il tuo prezzoProponi il tuo prezzo

Classe Energetica

G
G
G
G
G
G
G
G
G
EP globale non rinnovabile:
3.51 kW h/m² anno
EP globale rinnovabile:
3.51 kW h/m² anno
EP invernale del fabbricato:
EP estiva del fabbricato:
Anno di costruzione:
1920
Riscaldamento:
Autonomo
Tipo impianto:
Ad aria
Tipo alimentazione:
Altro

Ti interessa visionare l'immobile?

Fissa un appuntamento  Fissa un appuntamento

Richiedi informazioni

Clicca su Leggi per aprire l'informativa
* Questi campi sono obbligatori

Calcola il tuo mutuo

Semplice e senza impegno
Anticipo

( % )
Mutuo

( % )

pochi semplici passi

inserisci i tuoi dati
Questionario completato
Grazie per aver richiesto un appuntamento senza impegno con un nostro Consulente del Credito e Assicurativo.

Hai inserito correttamente tutti i dati necessari e a breve riceverai una e-mail con un link da convalidare per inviare i tuoi dati.
Affiliato
Spigolatrice Srl
Corso Garibaldi, 1 84073 Sapri (SA)

Il nostro staff


  • Nadia Bianco
    Coordinatrice

  • Rosa Mannarino
    Collaboratrice

  • Luca Alessandro Nettuno
    Responsabile

  • Sandy Pace
    Collaboratrice

  • Antonio Rocco
    Affiliato
Corso Garibaldi, 1 84073 Sapri (SA)
Zona: Sapri -Villammare
Mostra su mappa
Orari: Dal lunedì al sabato, dalle 09.00 alle 13.00 e dalle 15.30 alle 20.00 . La domenica dalle 10.30 alle 12.30
Affiliato
Spigolatrice Srl
Corso Garibaldi, 1 84073 Sapri (SA)

2026 Tecnocasa Franchising S.p.A. - P. IVA 08365160152 - Via Monte Bianco 60/A 20089 Rozzano (MI). Ogni agenzia ha un proprio titolare ed è autonoma. Privacy policy | Policy utilizzo | Cookie policy